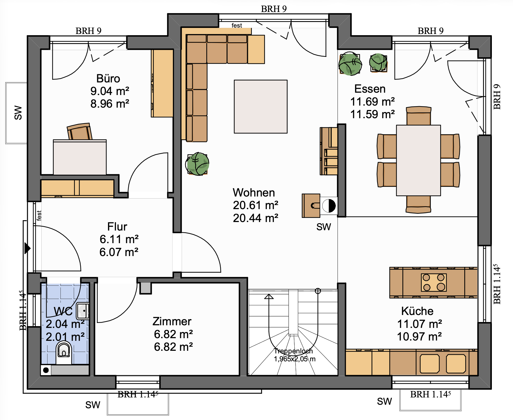
Zeitlose Eleganz und viel Transparenz bestimmen die Optik. Große Fensterfl ächen im EG und DG des zweigeschossigen Hauses schenken lichtes Wohnambiente.




Zeitlose Eleganz und viel Transparenz bestimmen die Optik. Große Fensterfl ächen im EG und DG des zweigeschossigen Hauses schenken lichtes Wohnambiente.

Du möchtest wissen, was dieses Haus kostet? Lade dir unseren kostenlosen Hauskatalog mit transparenten Preisbeispielen herunter.









.jpeg)



%202.jpeg)


